Res. Grand Bazar

€1.050/maand
  • Lasten huurder €75
  • Huurgarantie - aantal maanden 3
  • Details lasten gem. kosten
  • Voorwaarden van de kosten maandelijkse bepaling met jaarlijkse aanpassing
Paul de Smet de Naeyerstraat 28-30 8430 Middelkerke
Bekijk via google maps
  • 2 slaapkamer(s)
  • 1 badkamer(s)

Ruim nieuwbouwappartement te huur met twee slaapkamers en een lichtrijke leefruimte met zijdelings zeezicht. Het appartement beschikt over een volledig ingerichte keuken, mooie slaapkamers en is afgewerkt met alle moderne technieken. Dankzij de EPC-score A geniet u van een uiterst energiezuinig en comfortabel woonklimaat. Top centrale ligging, vlak bij winkels, openbaar vervoer en zee.

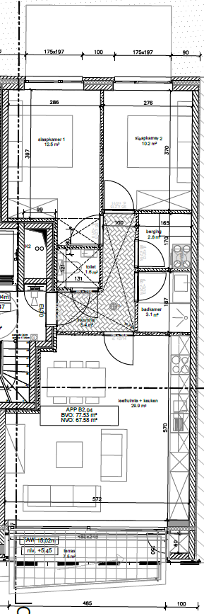
Indeling:
2°V: inkomhal - zeer ruime leefruimte met grote raampartijen - terras met zijdelings zeezicht - badkamer met inloopdouche en lavabo - berging met aansluiting wasmachine/droogkast - apart toilet - 2 ruime slaapkamers
-1°V: kelderberging 9 (1.60 * 2.30)

Troeven:
- Nieuwbouw
- Instapklaar
- Zeer lichtrijk
- Zeer centraal gelegen

Huurprijs: €1.050,00/maand
Gem. kosten (provisie): €75,00/maand
Vrij: onderling overleg

Het appartement zal nog afgewerkt worden, het appartement is wel instapklaar en reeds geschilderd

📩 Interesse? Vul het contactformulier in of mail naar josefien@immopadiva.be
📞 Telefonisch kunnen geen afspraken worden ingepland.

Gebouw

  • Bouwjaar 2025

Basisuitrusting

  • keuken Ja
  • type verwarming individueel
  • lift Ja
  • dubbele beglazing Ja
  • type lift personenlift
  • badkamer douche
  • type dubbele beglazing thermische en akoestische onderbreking
  • videofoon Ja

In cijfers

  • aantal douchekamers 3
  • slaapkamer 1 12.5m2
  • slaapkamer 2 10m2
  • woonkamer 30m2

Aansluitingen

  • elektriciteit Ja
  • kabeltelevisie Ja
  • telefoonbekabeling Ja
  • water Ja

Omgeving

  • Type buurt centraal
  • Type buurt 2 stadskern

Hoofdkenmerken

  • terras 1 7.45m2

Energie

  • EPC-klasse A
Laat uw gegevens na

Meer info aanvragen